Nasze Usługi
Oferujemy kompleksowe projektowanie wnętrz oraz odbiory nieruchomości dostosowane do Twoich potrzeb.
Projekt wnętrz
Każde wnętrze wyceniamy indywidualnie. W zależności od zakresu projektu oraz stanu inwestycji. Współprace zaczynamy od 100 zł/m2.




Odbiory techniczne
Koszt odbioru to cena 10-12 zł/m2 w zależności od powierzchni i lokalizacji. Do odbioru proponujemy konsultacje wnętrz płatna 150 zł.
Oferujemy konsultacje online lub stacjonarnie. Koszt konsultacji to 200 zł za dwie godziny.
Konsultacje wnętrz
Kompleksowe projekty wnętrz – od koncepcji do realizacji
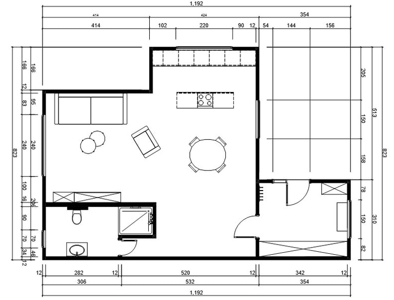
Wykonuję kompleksowe projekty wnętrz, które obejmują:
pomiar i inwentaryzację (w przypadku projektów istniejących wnętrz),
układ funkcjonalny,
rzuty branżowe, w tym elektrykę, wodno-kanalizacyjne instalacje oraz układ ścian,
szkice zabudowy stolarskiej,
wizualizacje,
listy zakupowe.
Odbiory techniczne nieruchomości


Konsultacje wnętrz – online lub stacjonarne
Dodatkowo oferuje również wspólny wybór materiałów stacjonarnie w sklepie oraz nadzór nad robotami wykończeniowymi.
Przeprowadzamy kompleksowy odbiór techniczny każdej nieruchomości. Za pomocą profesjonalnego sprzętu weryfikujemy wszystkie usterki, sprawdzamy zgodność inwestycji z projektem od dewelopera. Pomagamy przy pisaniu protokołu zdawczo-odbiorczego. Dodatkowo oferujemy konsultacje wnętrz na miejscu. Przeprowadzamy wtedy wspólnie rozmowę dotyczącą potrzeb i preferencji aranżacji oraz wykonujemy dokładne pomiary.
Online lub stacjonarnie Oferujemy konsultacje stacjonarnie bądź online. Omawiamy na nich nurtujące kwestie, pomagamy w wyborze odpowiedniego układu funkcjonalnego, przeanalizowania bądź doboru materiałów. Każda konsultacja poprzedzona jest wymiana emalii na temat potrzeb i oczekiwań. Dzięki temu przygotowujemy już propozycje i rozwiązania, które przedstawiamy podczas rozmowy.
Pokój Studio Projektowe Adrianna Biernat-Szczesniak NIP 9721297839
Kontakt
© 2025. All rights reserved.
